Cristalizador de superfície raspada É projetado para aplicações de cristalização e secagem de águas residuais com alta carga, alta salinidade e alta viscosidade.
Ao combinar circulação forçada, transferência de calor por superfície raspada e cristalização controlada, possibilita-se a separação estável de sólidos e líquidos e a remoção eficiente da umidade.
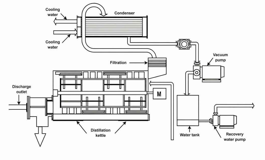
Cristalizador de Superfície Raspada - Sistema de Cristalização e Secagem Sólido/Líquido de Alta Capacidade
O cristalizador de superfície raspada foi projetado para fluxos de águas residuais onde os sistemas convencionais de evaporação ou cristalização apresentam dificuldades devido à formação de incrustações, obstruções ou alto teor de sólidos.
O raspador rotativo remove continuamente os depósitos da superfície de transferência de calor, garantindo uma troca de calor estável e um crescimento controlado dos cristais durante a operação a longo prazo.
Principais características

Posicionamento do sistema
• Instalado a jusante do MVR ou de outras unidades de concentração evaporativa para secagem final.
• Utilizado como etapa final em sistemas de descarga zero de líquidos (ZLD) para produzir resíduos sólidos manejáveis.
• Posicionado após a concentração primária de resíduos ou unidades de membrana para reduzir o volume
Aplicações típicas
• Salmoura concentrada e licor-mãe provenientes de evaporadores
• Águas residuais com alta dureza provenientes de processos químicos e industriais
• Fluxos de resíduos de alta viscosidade, como pesticidas e águas residuais de baterias de lítio
• Lixiviado de aterro sanitário e resíduos mistos complexos que requerem solidificação
Visão geral do processo de cristalização e secagem da superfície raspada

Etapa 1 – Introdução à Ração Concentrada
Águas residuais com alta salinidade ou alto teor de sólidos são introduzidas no cristalizador sob fluxo controlado.
Etapa 2 – Transferência de calor e cristalização
O calor é transferido através de superfícies raspadas enquanto cristais se formam na pasta circulante.
Etapa 3 – Raspagem contínua
Raspadores rotativos removem depósitos das superfícies de troca de calor para evitar incrustações.
Etapa 4 – Separação Sólido-Líquido
Os sólidos cristalizados são concentrados e separados da fase líquida.
Etapa 5 – Secagem e descarga
Os sólidos são ainda mais secos para reduzir o teor de umidade antes do descarte ou eliminação.
Especificações técnicas
Os dados de desempenho a seguir são baseados em condições de teste padrão. O desempenho real pode variar dependendo da qualidade da água de alimentação e dos parâmetros operacionais.
| Modelo | Capacidade de tratamento | Capacidade anual | Consumo específico de vapor | Consumo de vapor | Potência instalada | Dimensões gerais | Peso | Peso operacional |
| t/h | t/ano | (t vapor / t alimentar) | kg/h | kW | (C×L×A, mm) | kg | kg | |
| EET50 | 0,05 | 300 | 1.2 | 60 | 2 | 2641x1098x2161 | 1420 | 1620 |
| EET150 | 0,15 | 900 | 1.2 | 180 | 3 | 3700x1088x2159 | 1852 | 2252 |
| EET250 | 0,25 | 1500 | 1.2 | 300 | 8 | 4992x1445x2739 | 3800 | 4800 |
| EET375 | 0,375 | 2250 | 1.2 | 450 | 11 | 5489x1541x2841 | 5360 | 6560 |
| EET500 | 0,5 | 3000 | 1.2 | 600 | 16 | 4208x2678x3808 | 7500 | 9500 |
| EET750 | 0,75 | 4500 | 1.2 | 900 | 23 | 5365x2958x3678 | 9260 | 11660 |
| EET1000 | 1.0 | 6000 | 1.2 | 1200 | 27 | 6514x3358x3790 | 11965 | 17045 |
Observação: Os dados de desempenho são baseados em condições operacionais padrão. (20 horas/dia, 300 dias/ano)Os resultados reais podem variar dependendo das características da alimentação e das condições do local.
Deixe um recado
Escaneie para o WeChat :
Escaneie para o WhatsApp :